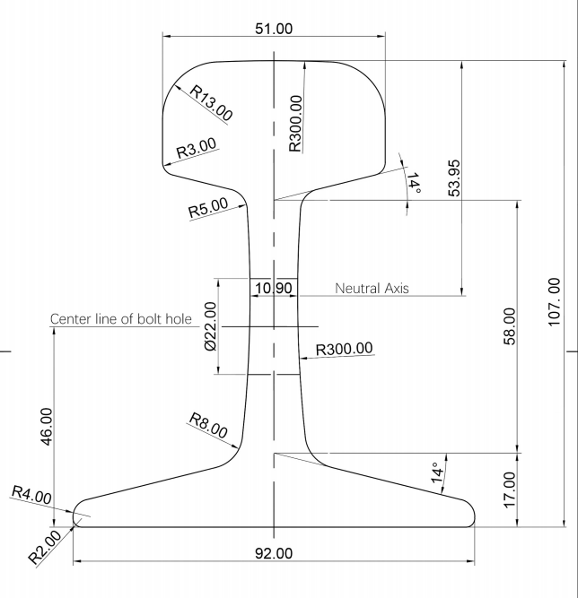
A vital component of railway tracks, rail steel is a high-strength alloy, typically made of manganese steel, designed to withstand heavy loads and continuous wear from trains. Its distinct I-shaped (or "bullhead") cross-section provides stability and evenly distributes weight, ensuring safe and smooth rail operations. Produced via hot rolling for dimensional accuracy and durability, it offers excellent resistance to deformation, corrosion, and impact. Widely used in railways, metros, and heavy-duty transportation systems, rail steel combines reliability with low maintenance requirements, supporting efficient and long-lasting infrastructure.
Three Advantages and Uses of Rail Steel:






